Alles-Drin! Herrlicher Wohnraum und exklusiver Flair für die ganze Familie.
Doppelhaushälfte, Helmstadt-Bargen / Helmstadt
Beschreibung
Diese moderne und neuwertige Doppelhaushälfte ist mit einer Wohnfläche von ca. 137 m2 konzipiert, für die gesamte Familie. Es bietet Ihnen mit seinen großen, lichtdurchfluteten Räumen besonders viel Platz und es findet sich immer der ideale Ort zum Wohlfühlen.Zögern Sie nicht lange und vereinbaren Sie noch heute Ihren individuellen Besichtigungstermin mit uns!
Ausstattung
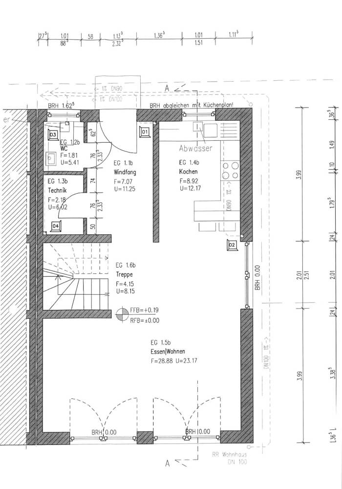
Diese Doppelhaushälfte besteht aus zwei Vollgeschossen und einem ausgebautem Dachgeschoss mit Badezimmer.Im Erdgeschoss des Hauses befindet sich die geräumige Küche, der helle Wohn- und Essbereich, räumlich abgetrennt der große Flurbereich mit einem kleinen Gäste-WC sowie der Hauswirtschaftsraum mit den Anschlüssen für Waschmaschine und Internet.
Über die Treppe hinauf, gelangen Sie in das Obergeschoss. Hier finden Sie drei gemütliche Schlafzimmer, welches eins davon auch sehr geräumig ist und der heranwachsende Teenager sich frei entfalten kann. Das Badezimmer besticht mit gehobener Ausstattung wie der großen Eckbadewanne und der ebenerdig begehbaren Dusche.
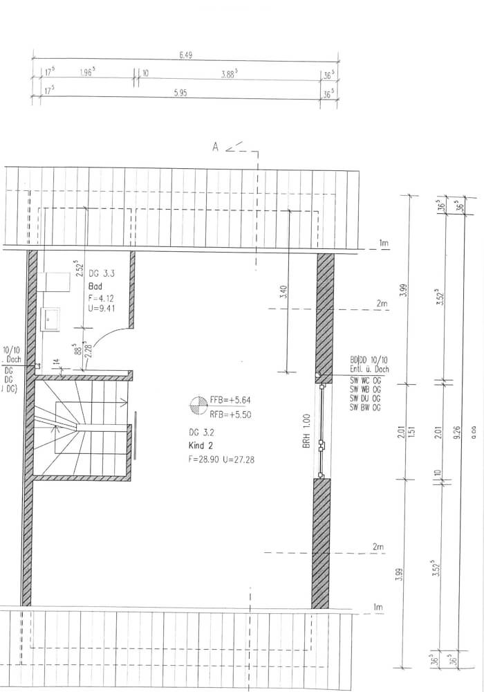
Das ausgebaute Dachgeschoss ist zum jetzigen Stand ein geräumiges Elternschlafzimmer mit Duschbad und WC.
Wem dies noch nicht genügt, dem bietet der Vorzug des elektrisch betriebenen und steuerbaren Garagentors an der separaten Garage eine weitere Annehmlichkeit, abgerundet wird das ganze noch mit elektrischen Rollläden an jedem Fenster.
Lage
Helmstadt-Bargen ist eine Stadt mit hoher Wohn- und Lebensqualität. Die Gemeinde besteht aus den drei Ortsteilen Helmstadt, Flinsbach und Bargen. Sie liegt in den Tälern des Wollenbaches und des Schwarzbaches am Übergang des Kraichgaus zum kleinen Odenwald und gehört zur Metropolregion Rhein Neckar.Die Gemeinde liegt inmitten der Brunnenregion und ist das ideale Naherholungsgebiet für die Städte der Umgebung. Auf Schusters Rappen können Sie die Brunnenregion auf vielfältigen Wandertouren erkunden.
In früheren Zeiten war Landwirtschaft der Haupterwerbszweig. Heute hat sich eine Vielzahl von Betrieben aus Industrie, Gewerbe und Handel angesiedelt. Die vorhandenen Kultur- und Freizeitangebote zeichnen Helmstadt-Bargen als eine moderne und aufgeschlossene Gemeinde aus.
Helmstadt–Bargen verfügt über eine sehr gute Infrastruktur. Durch den Ort führt die Landstraße 530 von Lobenfeld nach Haßmersheim, die B 292 verläuft westlich von Helmstadt, wodurch Sie in 15 Minuten an der Autobahn A 6 sind, Anschlussstelle Sinsheim. Helmstadt ist auch an das Netz der S-Bahn Rhein Neckar aufgenommen mit stündlicher Verbindung nach Heidelberg.
Sonstige Angaben:
Folgende Details im Überblick:• Energieeffiziente Bauweise mit KfW 70 Dämmpaket
• Energiekonzept für Heizung und Warmwasser mit einer Direktwärmepumpe
• Fußbodenheizung auf allen Etagen
• Elektrische Rollläden im gesamten Haus
• Hochwertige Fliesen im gesamten Objekt
• Hauswirtschaftsraum mit Waschmaschinen- und Internetanschluss
• Garage mit elektrischem Sektionaltor
• Massiver Carport mit Übergang zur Terrasse
• Badezimmer mit ebenerdiger Dusche
• Ausgebautes Dachstudio als Schlafzimmer mit einem Duschbad.
Bitte beachten Sie als Interessent folgenden Hinweise:
Ich nehme den Provisionshinweis zur Kenntnis und werde im Fall, dass ich diese Immobilie erwerbe, eine Käufer-Provision in Höhe von 4,17 % inkl. der gesetzlichen MwSt. zur Kaufpreissumme nach notarieller Beurkundung bezahlen.
Ich nehme auch zur Kenntnis, dass mit dem Verkäufer ein provisionspflichtiger Maklervertrag abgeschlossen wurde. Die Maklerprovision beträgt 4,17 % inkl. gesetzlicher MwSt. zur Kaufpreissumme und wird nach notarieller Beurkundung fällig.
Die von uns hinterlegten Bilder haben wir aufgrund der DSGVO individuell bearbeitet.
Alle Angaben beruhen auf Aussagen der Eigentümer sowie vorhandene Unterlagen.
Sollten wir Ihr Interesse geweckt haben und Sie hätten gerne mehr Informationen zu dem angebotenen Objekt, stehen wir Ihnen sehr gerne zur Verfügung.
Wir freuen uns bald möglich von Ihnen zu hören.
Wir freuen uns bald möglich von Ihnen zu hören.
Ihre Ansprechpartner:










